戸田市マンション アイコン

 

「飾る家」
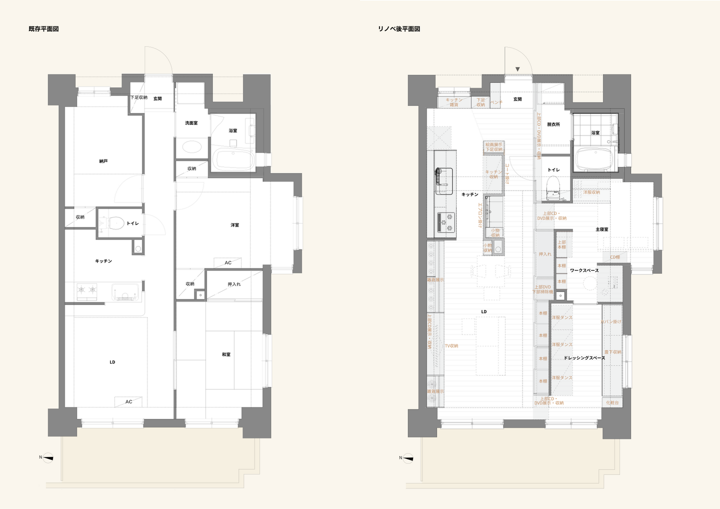
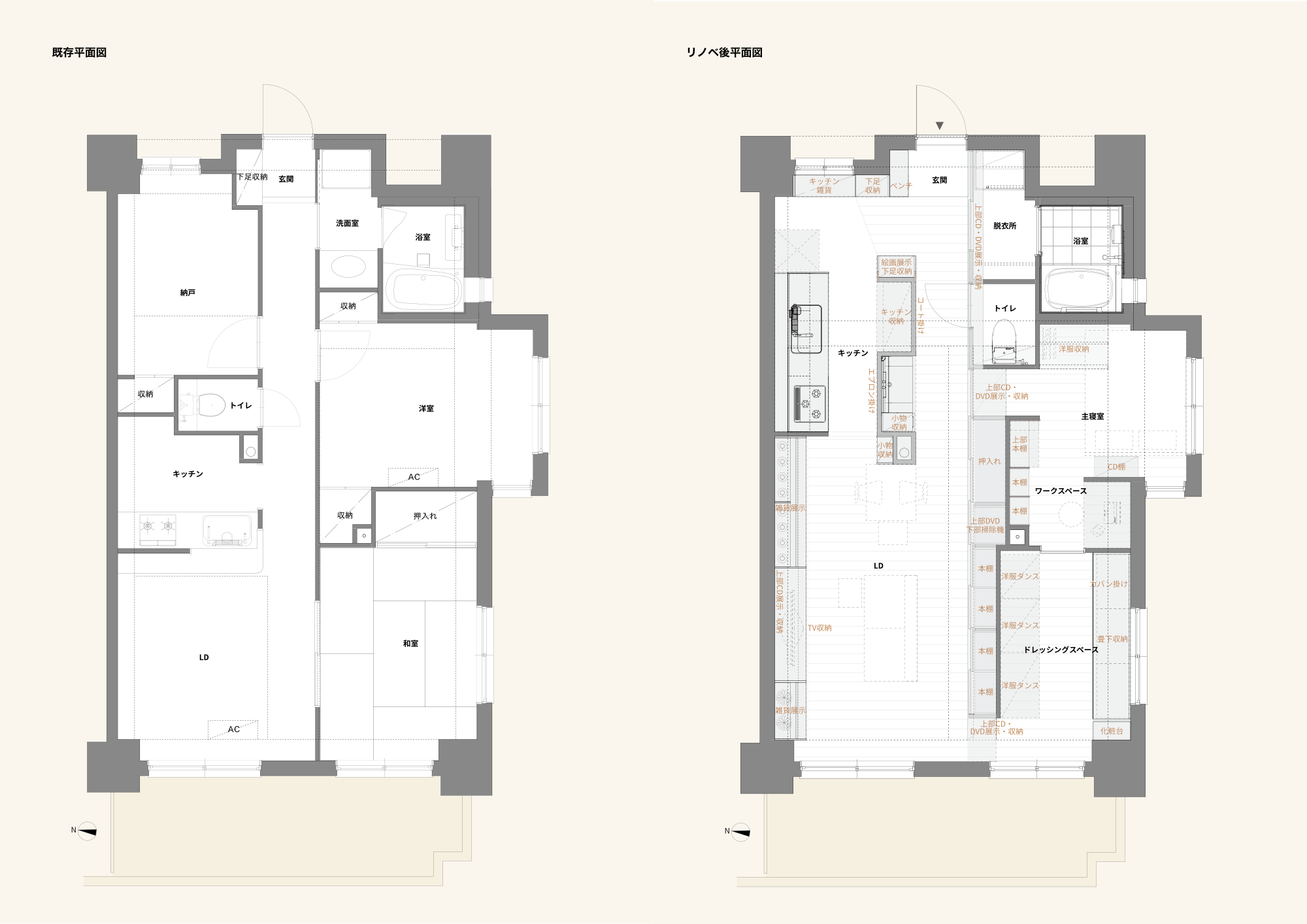
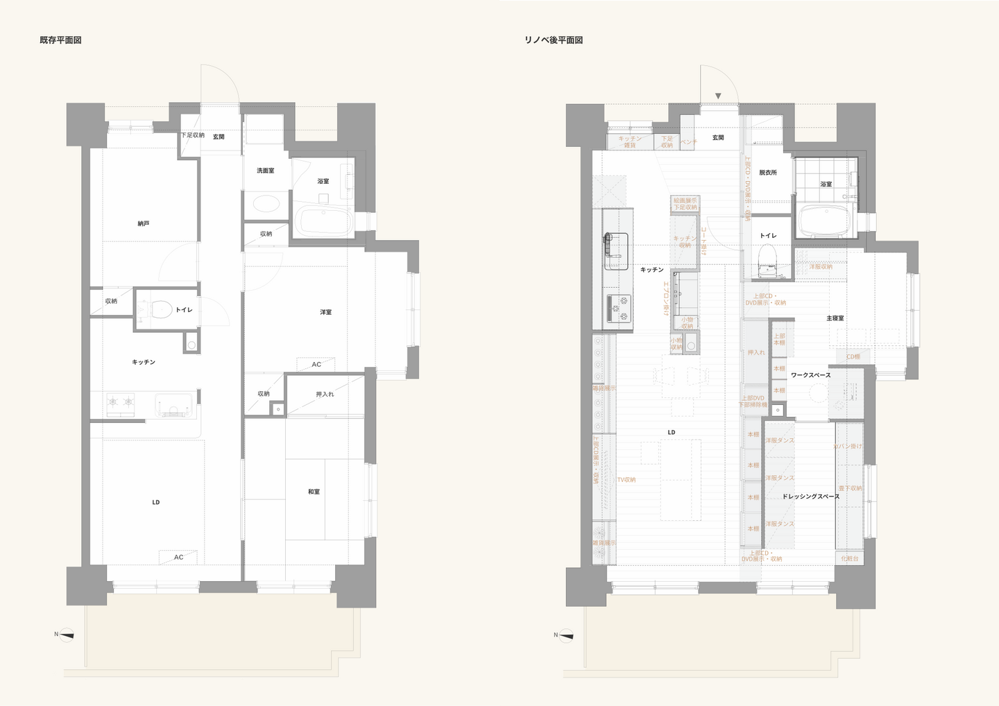
お施主さんは2000枚以上に及ぶCD(総厚25m以上)、500枚以上のDVD、LP、総厚11m以上の書籍、展示用カップや絵画などたくさんの物に囲まれながら60㎡ほどの住戸で生活をされていましたが、それらのコレクションを展示・収納しながら住まう方法に苦慮されていました。私たちに対する要望はそれらのコレクションと共に暮らす住まいのリノベーションでありました。そこで住戸内の中心と外壁沿いに展示・収納ボリュームを設け、それらを囲むように8の字型の「道」のような空間をつくることで、コレクション巡りをしながら所有感を満たす住まいの提案を行いました。

 

収納イメージ
 また夫婦2人暮らしのお施主さんの要望はなるべく仕切りをなくしたワンルーム空間であることと同時に、リモートワーク時に生活音が聞こえないようにしたいことでした。そのような理由からコレクションを展示・収納できるボリュームはワークスペースとリビングの間に設け、収納する物が多いほど遮音性能が向上するようなプランを考えました。上部は東西一面にCD用の展示・収納棚をつくり、長年集積されたコレクションを眺めなら暮らすことができます。
 

敷地:埼玉県戸田市
既存建物:1999年竣工
面積:60.92m2
設計期間:約5ヶ月
工事期間:約4.5ヶ月
施工:株式会社OTO
写真:中村晃
 

 
玄関
玄関前で座って靴を履けるようオーク製の造作ベンチを設置しています。ベンチの後ろは靴や傘収納を計画しています。玄関から入って左側に見える引き戸は開けると洗濯機置き場が有り、横からも洗濯機の下や裏側を掃除できるようにしています。
 
ホール
玄関から上がった先にも腰壁高さの靴収納を計画しています。その上の白いマグネットパネルにはお施主さんの好きな絵本作家の絵画を展示できるように計画しています。
 
ホール・廊下
玄関ホール左側に脱衣スペース、トイレを配置し、上部はCD収納棚を設けています。CD収納の上はポリカーボネートを設け、閉塞感を感じないように配慮しています。
 
 
 
 
 
CD収納
西側の玄関から東側の窓面まで一面にCD収納棚を計画しています。お施主さんが大切にしている物を展示しながら収納することで、大切な物と共に暮らす家を考えました。
 
 
 
洗面スペース 
洗面スペースは玄関、脱衣スペース、寝室から近い位置に配置し、利用しやすい導線計画としています。洗面スペースの隣の壁面にはコートなどを掛けられるフックを2つ設置しています。
 
 
 
 
 リビング
収納スペースはしっかりと確保しつつ、既存よりも広いリビングを計画しています。
 
 
 
 展示・収納家具
リビングの壁両面に展示・収納スペースを計画しています。白い引き戸の中は書籍やDVDを収納できるよう計画し、テレビ台の横にはコレクション用のカップや雑貨を展示するスペースを設けています。それぞれ上部はCDを収納できるスペースを計画しています。
 
 
 ドレッシングスペース
リビンの裏には洋服を収納し、身支度を整えることができるドレッシングスペースを計画しています。白い壁の部分にはお施主さんが所有されているオーダーメイドの洋服タンスが置けるようスペースを確保しています。向かいの畳スペースは休憩時に利用することの他、座りながら洋服を畳むことができるようなスペースとして計画しています。

 

 
 化粧台
ドレッシングスペースにはオーク製の造作化粧台を計画しています。化粧台の高さや奥行き、収納量は事前にお施主さんと何度もやりとりを行い、要望に沿ったサイズで計画しています。
 
 
 ワーク・ベッドスペース
ベッドスペースの奥にワークスペースを計画しています。仕事用の本を収納できる造作の可動棚を設け、その向かいにワークデスク設置場所を設けています。作業に集中できるようデスク横に壁を設け、ビデオ会議をした時にベッドなどが見えないように机や棚の配置を考えています。
 
 
 
ダイニング・キッチンスペース
キッチンはステンレス天板でシンプルな形状のものを選定しています。キッチンの背面壁の一部にマグネットパネルを設置し、エプロンなどを掛けることができるよう計画しています。
 
 
バスルーム・トイレ
お風呂の浴槽はホーロー浴槽を選定しています。トイレの壁はお施主さんが気に入った緑色を選定しています。
 
プラン
最後まで閲覧いただきありがとうございます。
 
 他のルームツアーをご覧になる方は「Room tour」
私たちの設計に興味を持ち、ご相談などを希望される方は「Workflow」または「Contact」に進みください。