文京区 マンションリノベーション アイコン
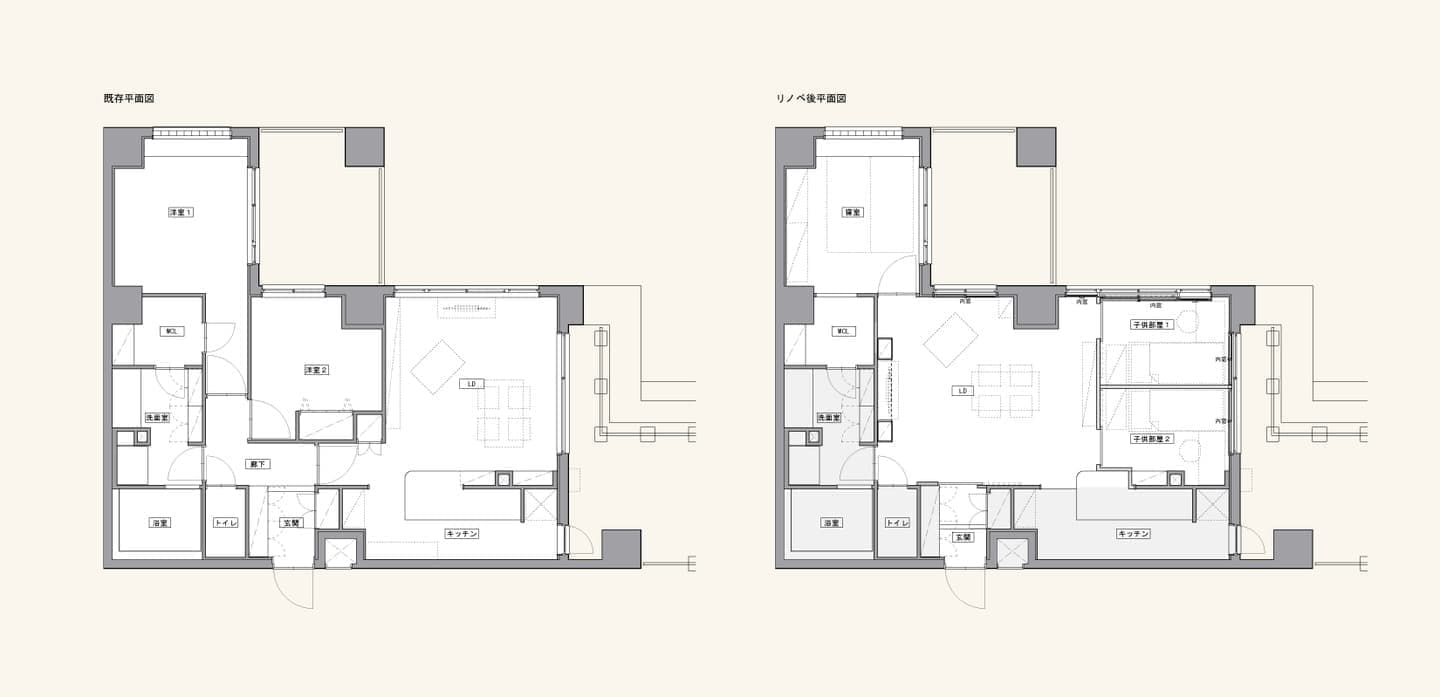
お子さんの成長に合わせて既存2LDKの間取りを3LDKに変更させた部分リノベーション計画です。既存洋室と廊下を解体しリビングダイニングに変更、既存リビングを子供部屋2室へ配置変更しました。
また角部屋、一部最上階の本物件において断熱性を上げるために内窓と天井断熱材を設置し、外部に面した壁面の仕上げは高い調湿性があるライムストーン原料の漆喰を施しています。

 
敷地:東京都文京区
既存建物:2004年竣工
面積:30m2(リノベーション対象範囲)
設計期間:約4ヶ月
工事期間:約2ヶ月
施工:株式会社OTO
写真:中村晃
 

 
 
 
 
リビング
リビングは玄関から室内に入って直ぐの場所で住戸の中心に配置しています。子ども部屋はこのリビングを介してアクセスするように配置しています。
 
 
子ども部屋
 
 
リビング
 床と天井、壁面収納には木質系、外に面する壁はベージュ色の漆喰仕上げを施し、室内全体を柔らかい雰囲気に仕立てています。
 
漆喰仕上げ
 
根津 マンションリノベーション
既存写真
写真上から2枚目、3枚目と同様のアングルから撮った既存の様子です。元々洋室だった部屋を解体し、リビングを計画しました。
 
根津 マンションリノベーション
既存写真
写真上から7枚と同様のアングルから撮った既存の様子です。奥に見える扉はリノベーションで白のフィルムを貼り再利用しています。
 
 
 
 
最後まで閲覧いただきありがとうございます。
 
 
 
のルームツアーをご覧になる方は「Room tour」
私たちの設計に興味を持ち、ご相談などを希望される方は「Workflow」または「Contact」に進みください。